Villa a schiera in vendita

Villafranca Di Verona, Via Don Giovanni Bosco - Dossobuono
€ 350.000
4 locali 4 locali
202 Mq 202 Mq
3 bagni 3 bagni

Villa a schiera in vendita

Villafranca Di Verona, Via Don Giovanni Bosco - Dossobuono

Descrizione annuncio

Dossobuono - inserita in ricercata zona residenziale, posizionata nel pieno centro di Dossobuono in via a fondo chiuso servita da ampio parco pubblico, proponiamo in vendita elegante villetta a schiera centrale.

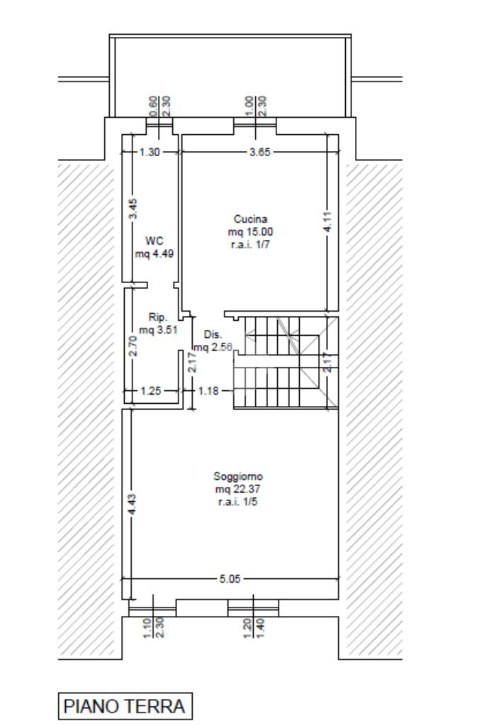
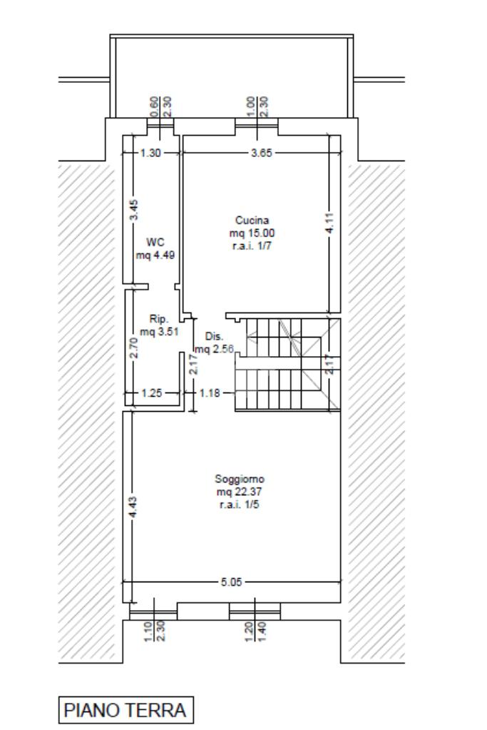
La soluzione è dotata di ingresso indipendente tramite il giardino privato di 50,00 mq che ci conduce all’ interno dell’abitazione dove troviamo luminoso soggiorno di 22,37 mq e cucina abitabile di 15,00 mq con accesso al balcone posto sul retro dell’immobile. A completamento del piano troviamo comodo ripostiglio e bagno finestrato con anch’ esso accesso al balcone.

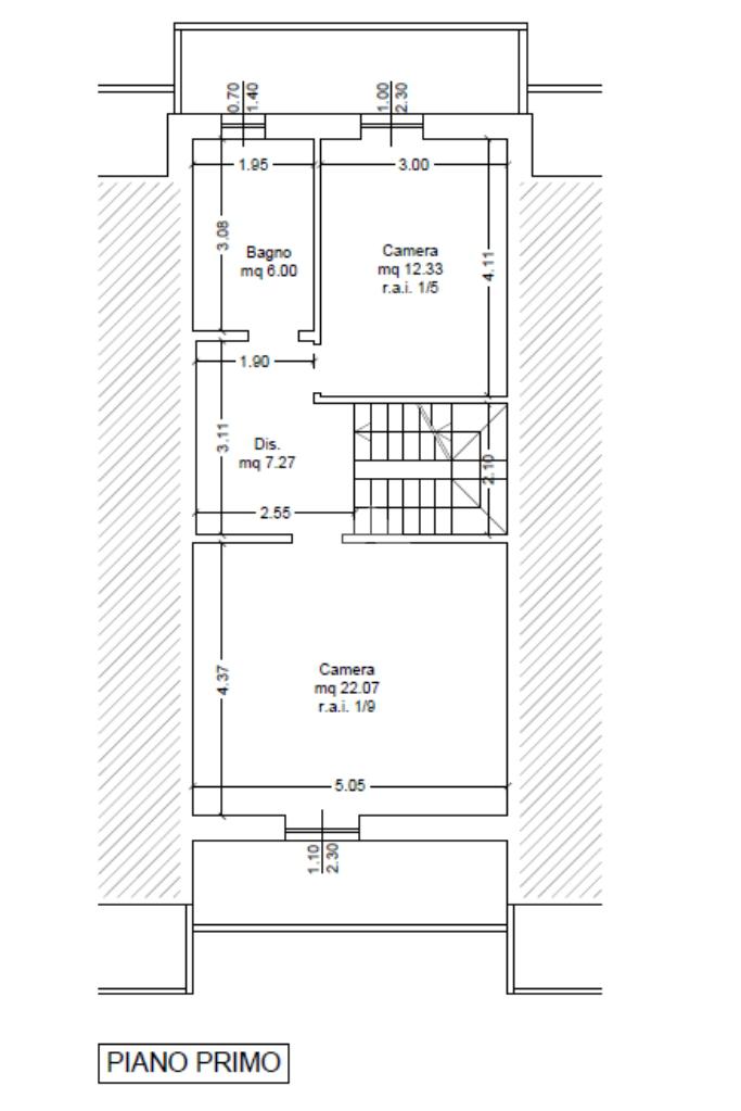
Salendo al piano primo troviamo ampia camera matrimoniale di 22,07 mq, camera doppia di 12,33 mq e bagno finestrato. Tutti i locali sono serviti da balconi.

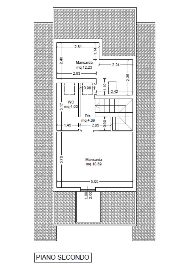
Raggiungendo infine l’ultimo piano completa la soluzione camera da letto di 18,69 mq, bagno finestrato con velux ed ampio ripostiglio di 12,23 mq.

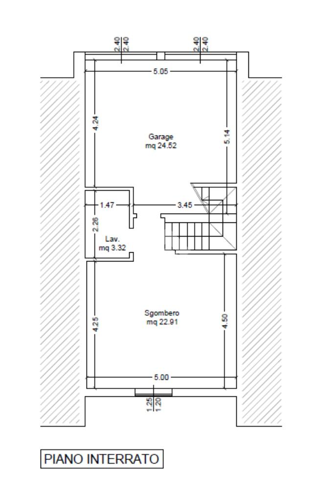
Al piano interrato taverna servita da camino di 22,91 mq, lavanderia e garage doppio in larghezza di 24,52 mq.

Soluzione ottima per famiglie alla ricerca di ampi spazi e della comodità al centro senza rinunciare alla tranquillità.

Mostra tutto

Nelle vicinanze

Trasporto pubblico Trasporto pubblico
Dossobuono
Dossobuono
530 m
Dossobuono
Dossobuono
120 m
Trasporto pubblico
320 m
Ricariche auto elettriche Ricariche auto elettriche
Caselle Piazza dei Donatori | EnelX
2,7 Km
Scuole Scuole
Scuola Secondaria Rita Levi Montalcini
430 m
Scuola Primaria Vittorio Locchi
510 m
Scuola Primaria Emilio Salgari
1,5 Km
Scuole
2,6 Km
Farmacia Farmacia
Farmacia Peretti
320 m
Farmacia Comunale Dossobuono
620 m
Farmacia Madonna della Salute
1,7 Km
Farmacia
2,6 Km
Dr.Caterina Donella e Lorena Zerba
2,7 Km
Supermercati Supermercati
EuroSpin
440 m
Iper Famila
1,1 Km
Market Petao
2,0 Km
Negozi Negozi
Panificio Filippi
160 m
Tutte... tute
270 m
Negozi
460 m
Corsato
620 m
La Dispensa
2,5 Km
Bar Bar
Bar pasticceria Gioia
160 m
Cafè Giardino
180 m
Caffetteria Pasticceria Manzatti
190 m
Bar Blondy's
580 m
Bar
870 m
Ristoranti Ristoranti
Ristorante Cavour
80 m
Pizzeria da Paolo
260 m
Pizzeria La Sorpresa
270 m
L'Isola della Pizza
700 m
Agriturismo dal Perba
1,0 Km
Mostra tutto

Caratteristiche

Rif.:
61117565
Piano:
Su più livelli di 3
Totale piani:
3
Box:
2
Balconi:
4
Camere da letto:
3
Mostra tutto
Prezzo Prezzo
€ 350.000
Rata mutuo Rata mutuo
€ 1.652 / mese
Proponi il tuo prezzoProponi il tuo prezzo
Immobile valutato con T·Valuta

Classe Energetica

Questo immobile è esente da classe energetica
Anno di costruzione:
1988
Riscaldamento:
Autonomo
Tipo impianto:
A radiatori
Tipo alimentazione:
Metano

Ti interessa visionare l'immobile?

Fissa un appuntamento  Fissa un appuntamento

Richiedi informazioni

Clicca su Leggi per aprire l'informativa
* Questi campi sono obbligatori

Calcola il tuo mutuo

Semplice e senza impegno
Anticipo

( % )
Mutuo

( % )

pochi semplici passi

inserisci i tuoi dati
Questionario completato
Grazie per aver richiesto un appuntamento senza impegno con un nostro Consulente del Credito e Assicurativo.

Hai inserito correttamente tutti i dati necessari e a breve riceverai una e-mail con un link da convalidare per inviare i tuoi dati.
Affiliato
La Fenice Immobiliare Srl
Corso Vittorio Emanuele II, 69 37069 Villafranca Di Verona (VR)

Il nostro staff


  • Laura Padovani
    Affiliata

  • Silvia Guglielmoni
    Coordinatrice

  • Cristian Scardoni
    Affiliato
Corso Vittorio Emanuele II, 69 37069 Villafranca Di Verona (VR)
Zona: Villafranca di Verona-Dossobuono-Alpo
Mostra su mappa
Affiliato
La Fenice Immobiliare Srl
Corso Vittorio Emanuele II, 69 37069 Villafranca Di Verona (VR)

2025 Tecnocasa Franchising S.p.A. - P. IVA 08365160152 - Via Monte Bianco 60/A 20089 Rozzano (MI). Ogni agenzia ha un proprio titolare ed è autonoma. Privacy policy | Policy utilizzo | Cookie policy